MAISON MVBH – RÉNOVATION – LAVÉRUNE
- Rénovation Lourde – Maison de 180 m2
- 34 880 LAVERUNE
- En cours
- Mission Complète
- Maître d’Ouvrage privés
Présentation
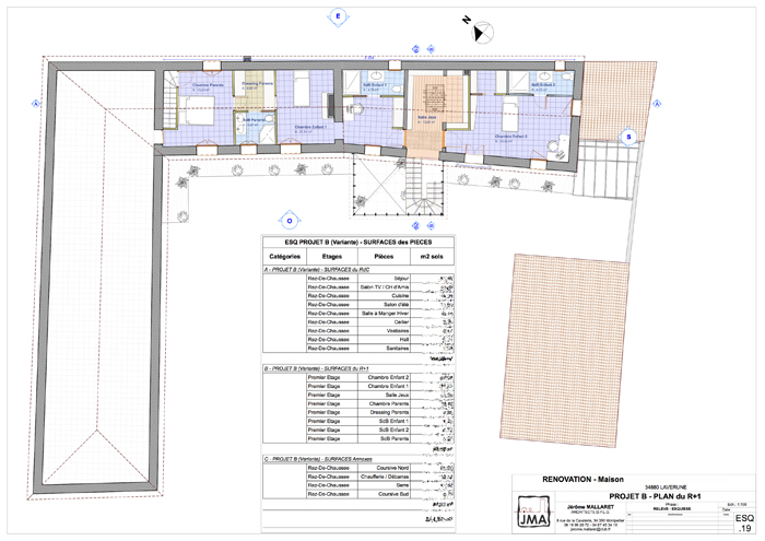
PROJET final (différent des variantes exposées) :
La Maîtrise d’Ouvrage souhaitait rénover une maison d’habitation dans une des ailes d’une grande propriété datant de 1740.
Les études préliminaires ont permis de préciser l’adéquation entre le programme, les surfaces et les coûts ; et d’anticiper les problématiques de chantier en site occupé.
Le projet prévoit de libérer les espaces intérieurs et l’unique façade des logiques structurelles de la maçonnerie en pierre.
Ainsi les pièces du RdC se succèdent dans un seul et même volume ; seuls des séparatifs vitrés sont disposés pour filtrer les vues et les usages selon les besoins et les envies des occupants et non plus selon les nécessités des masses porteuses.
La relation intérieure et extérieures est rétablie entre les nouveaux espaces de vie et la terrasse extérieure dans la grande cour de la propriété.
Au premier, les surfaces sont optimisés pour les couchages et les pièces humides en rendant la façade et ses ouvertures aux pièces nobles plutôt qu’au couloir initial.










